貸店舗
T2431八勝通貸店舗
地下鉄の駅まで近いロケーションにあり、周辺にはセレブな雰囲気が漂う高級感のあるお店に最適な新築店舗です。業種につきましては都度ご相談となります。是非ご検討下さい。
| 所在地 | 瑞穂区八勝通3 |
|---|---|
| 交通機関 | 地下鉄名城線 瑞穂運動場東駅1分 |
| 構造/規模 | RC造 8階建て |
| 賃料月額 | 462,000 |
| 共益費月額 | |
| その他諸経費 | 安心サポート |
| 保証金 | 6か月 |
| 保証金償却 | 50% |
| 駐車場 | 13,200円/台 |
| 階数・号数 | 1階 |
|---|---|
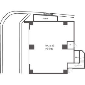
| 面積 | 97.11㎡ (29.37坪) |
| 現況 | 建築中 |
| セールスポイント | 好立地店舗です |
| 業種 | 相談 |
| 入居可能日 | 2025年5月 |
| 礼金 | |
| 備考 | 火災保険、保証会社加入。 |
| 用途地域 | 第二種住居地域 |
※契約締結時に仲介手数料として賃料の1ヶ月分申し受けます ※賃貸条件の詳細は重要事項説明書をもって説明(優先)します。
※取引の態様:媒介
※取引の態様:媒介
|
|
|
|
|















